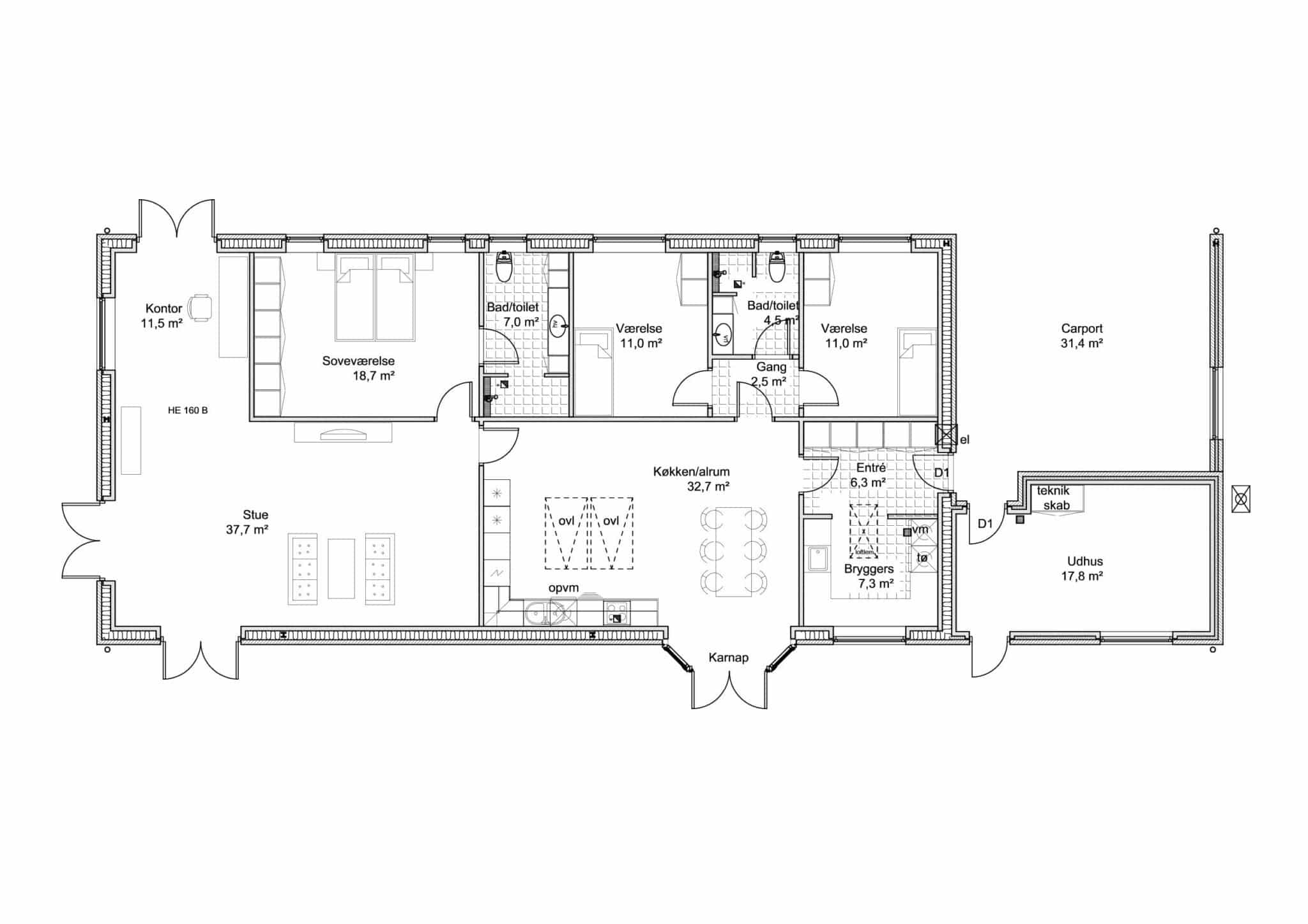
Arkitekttegnet længehus

Arkitekttegnet længehus

178 m² i ét plan med integreret carport og udhus

Vores senest udførte arbejde

Vi udfører en bred vifte af opgaver – se vores seneste referencer her.

Ombygning af Orø Skole – nye rammer for læring, leg og fællesskab

Totalrådgivning med udbud i Hovedentreprise, byggeledelse og fagtilsyn 11/2023 – 05/2024

30 almene boliger i Højby

Arkitektrådgivning, Udarbejdet lokalplan, Myndighedsprojekt, Udførelsesprojekt i fagentreprise, og fagtilsyn

Transformation af pakhus til Kalundborg Kulturhus

Totalrådgivning, projekteringsledelse, projektering, byggeledelse og fagtilsyn

Rørmosecentret i Gørlev

Arkitektrådgiver & arbejdsmiljøkoordinator

Holbæk Lilleskole

Totalrådgivning, projektering, byggeledelse og fagtilsyn

Bjergmarkskolen

Bygherrerådgivning og byggeprogram

Asnæscentret – Nyt indgangsparti

Totalrådgivning, projekteringsledelse, projektering, byggeledelse og fagtilsyn.

Vig Præstegård

Bygherrerådgivning

Gyden 14. – Asnæs

Bygherrerådgivning med Udbud i Totalentreprise