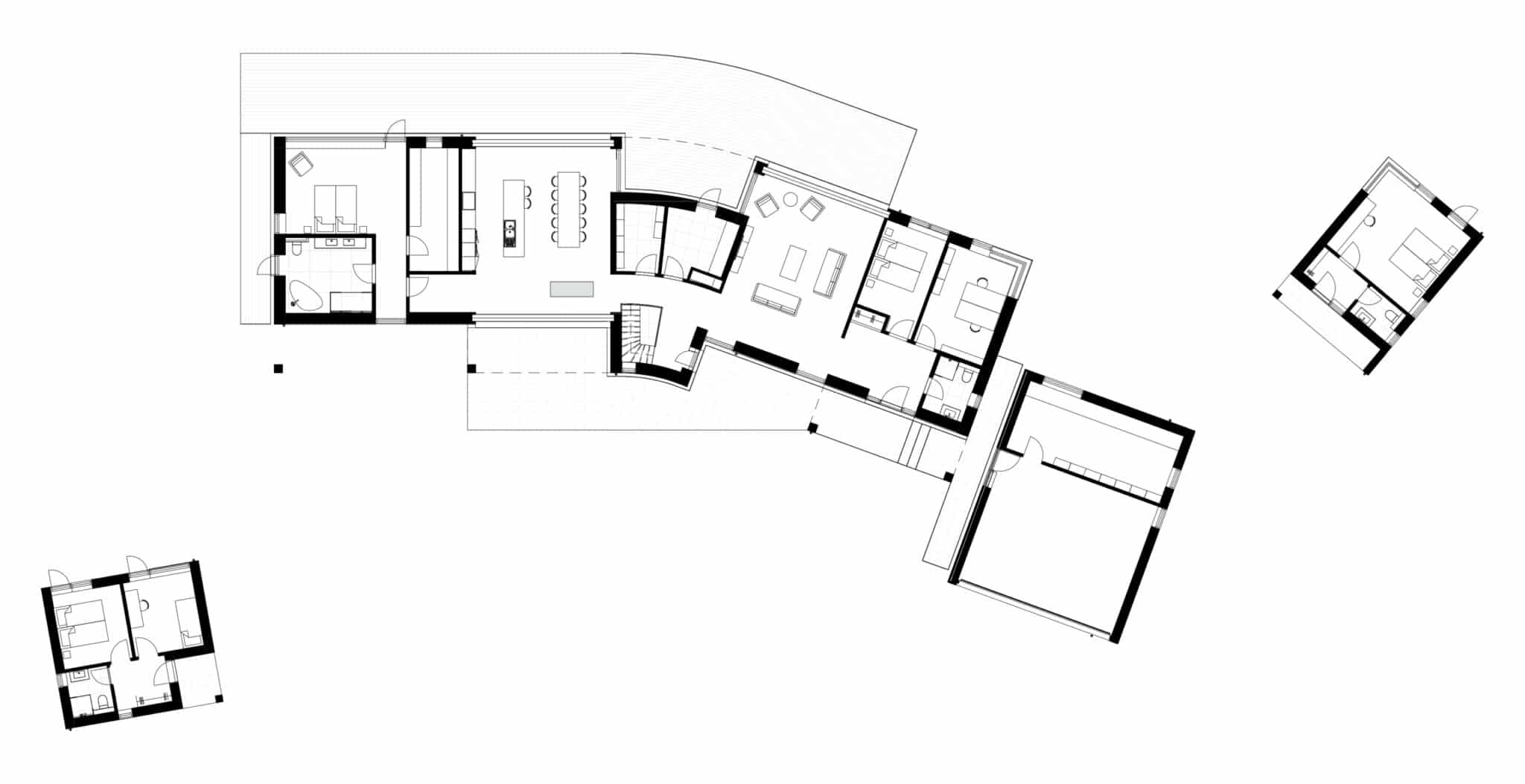
Arkitekttegnet luksus sommerhus på Tuse Næs

Arkitekttegnet luksus sommerhus på Tuse Næs

Nedrivning af eksisterende barak fra efterkrigstiden, og opførelse af et nyt luksus sommerhus ved Løserup på Tuse Næs.

Bygherre: Privat
Ingeniør: Danakon A/S
Rådgiver omfang: Totalrådgivning, design, myndigheds- og Hovedprojekt

Vores senest udførte arbejde

Vi udfører en bred vifte af opgaver – se vores seneste referencer her.

Ombygning af Orø Skole – nye rammer for læring, leg og fællesskab

Totalrådgivning med udbud i Hovedentreprise, byggeledelse og fagtilsyn 11/2023 – 05/2024

30 almene boliger i Højby

Arkitektrådgivning, Udarbejdet lokalplan, Myndighedsprojekt, Udførelsesprojekt i fagentreprise, og fagtilsyn

Transformation af pakhus til Kalundborg Kulturhus

Totalrådgivning, projekteringsledelse, projektering, byggeledelse og fagtilsyn

Rørmosecentret i Gørlev

Arkitektrådgiver & arbejdsmiljøkoordinator

Holbæk Lilleskole

Totalrådgivning, projektering, byggeledelse og fagtilsyn

Bjergmarkskolen

Bygherrerådgivning og byggeprogram

Asnæscentret – Nyt indgangsparti

Totalrådgivning, projekteringsledelse, projektering, byggeledelse og fagtilsyn.

Vig Præstegård

Bygherrerådgivning

Gyden 14. – Asnæs

Bygherrerådgivning med Udbud i Totalentreprise