FFT Gerbrand skolens

FFT Gerbrandskolen – Fremtidens Fritidstilbud – Totalentreprise

Amstadamvej 36, 2300 Kbh. S

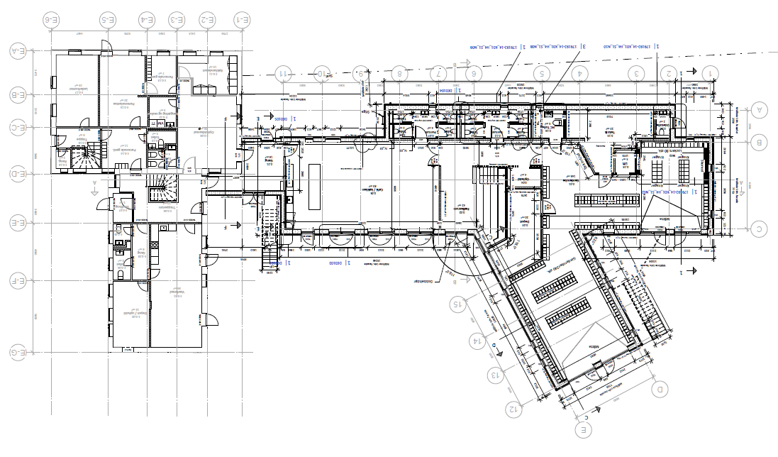
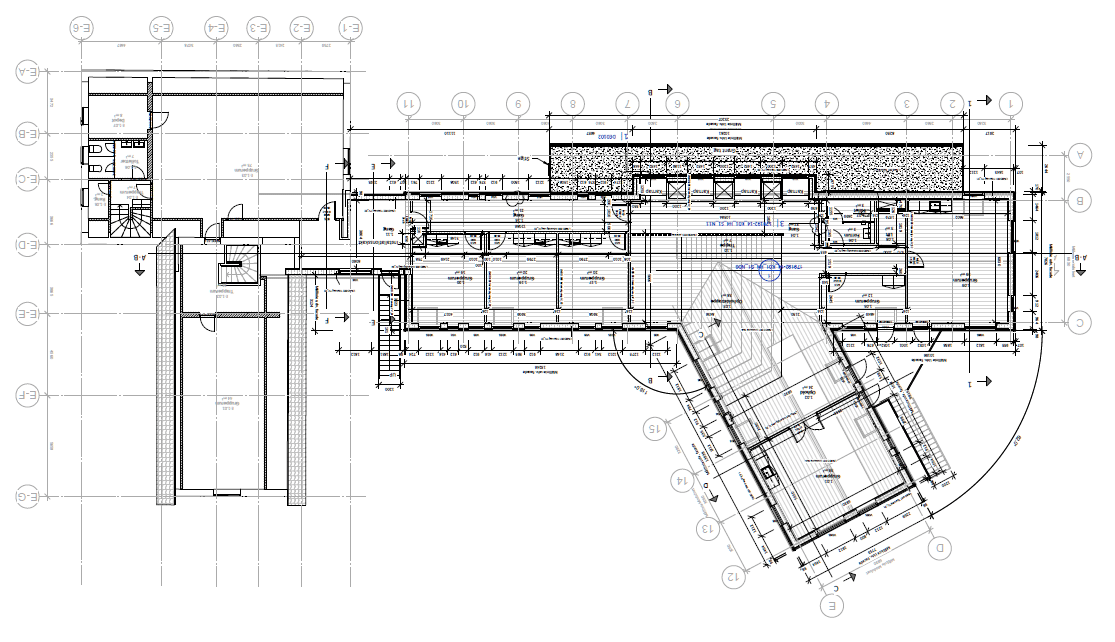
For Københavns Kommune opfører Combi Byg, i team med SCHOU BIRKENDORF arkitekter, Danakon rådgivende ingeniører og Anne Stausholm Landskabsarkitekter, denne 2-etagers nye bygning på ca. 800 m² , som skal indeholde 316 børn og 21 voksne

Den nye bygning indeholder i stueetagen garderobe med indbyggede opholdsområder blandt garderobeskabene, fællesrum med en stor opholdstrappe som forbinder til 1.sal, som også har en lille hule under sig, samt depotrum og et caférum med køkken, som kan åbnes op mod terrassen og mod fællesrummet.
Langs den østvendte facade er placeret tre toiletkerner som kan nås henholdsvis fra garderoben, fællesrummet og caféen, samt ventilationsrum og et udetoilet der nås fra gården.
På 1. sal findes grupperum af varierende størrelse, som alle har kig til uderummet foran bygningen, samt karnapper hvor børnene kan trække sig lidt tilbage.
Her findes også et toilet på 1. sal.
Den nye bygning er i begge niveauer forbundet med den eksisterende bygning via en forbindelsesgang.
Køkkendepot samt rengøring og vaskeri er placeret i stueetagen i den eksisterende bygning og der etableres en ny dør i facaden på 1.sal.

Bygherre: Københavns Kommune
Totalentreprenør: Combi Byg A/S
Ingeniør: Danakon
Rådgiver omfang: Arkitektrådgivning og projekteringsledelse
Landskabsarkitekt: Anne Stausholm Landskabsarkitekter
Anlægssum: kr. Kr. 28.200.000,-

Vores senest udførte arbejde

Vi udfører en bred vifte af opgaver – se vores seneste referencer her.

Ombygning af Orø Skole – nye rammer for læring, leg og fællesskab

Totalrådgivning med udbud i Hovedentreprise, byggeledelse og fagtilsyn 11/2023 – 05/2024

30 almene boliger i Højby

Arkitektrådgivning, Udarbejdet lokalplan, Myndighedsprojekt, Udførelsesprojekt i fagentreprise, og fagtilsyn

Transformation af pakhus til Kalundborg Kulturhus

Totalrådgivning, projekteringsledelse, projektering, byggeledelse og fagtilsyn

Rørmosecentret i Gørlev

Arkitektrådgiver & arbejdsmiljøkoordinator

Holbæk Lilleskole

Totalrådgivning, projektering, byggeledelse og fagtilsyn

Bjergmarkskolen

Bygherrerådgivning og byggeprogram

Asnæscentret – Nyt indgangsparti

Totalrådgivning, projekteringsledelse, projektering, byggeledelse og fagtilsyn.

Vig Præstegård

Bygherrerådgivning

Gyden 14. – Asnæs

Bygherrerådgivning med Udbud i Totalentreprise